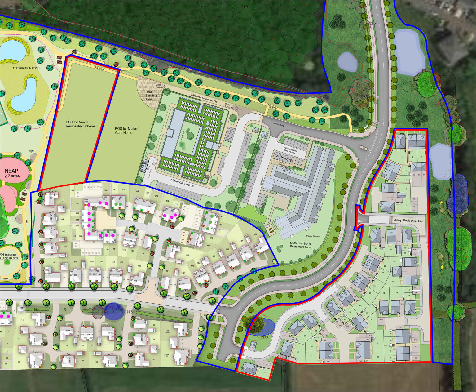
Following the successful sale of the first phase of development at Maylands Park, Nantwich to David Wilson Homes, Muller Property Group has submitted a revised mixed-use planning application for Phase 1B, bringing significant updates that prioritise community feedback. This development aims to create a harmonious blend of residential housing, retirement, and care facilities, complemented by expansive green spaces and improved access, enhancing the local area while addressing key concerns raised by residents and stakeholders.
Key messages:
- 1.35 acre site acquired in Derbyshire for a state-of-the-art care home with 75 en-suite bedrooms and modern wetroom facilities.
- South Normanton offers extensive local amenities and is strategically located to connect multiple towns, serving a combined population of 74,000 within a 2-mile radius and 187,000 within a 5-mile radius.
- The site is adjacent to Junction 28 of the M1 Motorway and the A38, providing easy access to nearby towns and cities, ensuring convenience for visitors and staff.
- The new care home aims to meet the growing demand for quality care facilities, enhancing residents’ quality of life with modern design and comprehensive amenities.
- The development will create approximately 180 jobs across various roles, offering significant employment opportunities during construction and once operational.
Revised Plans Following Extensive Public Consultation
The revised plans come after a detailed public consultation process involving local residents, Stapeley Parish Council, and various other stakeholders. This collaborative approach ensured that community feedback was incorporated into the updated proposals, especially regarding vehicle movements, pollution control, and the integration of employment zones with residential and public spaces.
Phase 1B had previously received planning approval in February 2024, but Muller Property Group’s re-evaluation has led to refinements that are more closely aligned with local needs and priorities.
A Diverse Range of Housing Options
Retirement and Care Facilities to Meet Community Needs
Green Infrastructure and Public Open Spaces
Improved Access and Connectivity
Commitment to Community Engagement
“Our revised plans for Maylands Park reflect our commitment to listening to local concerns and delivering a development that provides lasting benefits to the Nantwich community. We are proud to offer a mixed-use development that not only provides housing and care services but also prioritises public open space and green infrastructure.”
The development partners for the site are, Anwyl Homes delivering the residential and McCarthy Stone to develop and manage the retirement community should the site be granted planning approval.
Muller Property Group’s revised development plans for Maylands Park highlight a thoughtful, community-focused approach that balances housing needs with public spaces and environmental sustainability. The inclusion of affordable housing, retirement living, care facilities, and green infrastructure ensures that the project addresses the diverse needs of the Nantwich community.
As the project progresses through the planning stages, Muller Property Group will continue to engage with local residents and key stakeholders, ensuring that Maylands Park remains a development that Nantwich can be proud of.


