
Full Planning Permission Granted for New 80-Bed Care Home in Peterborough
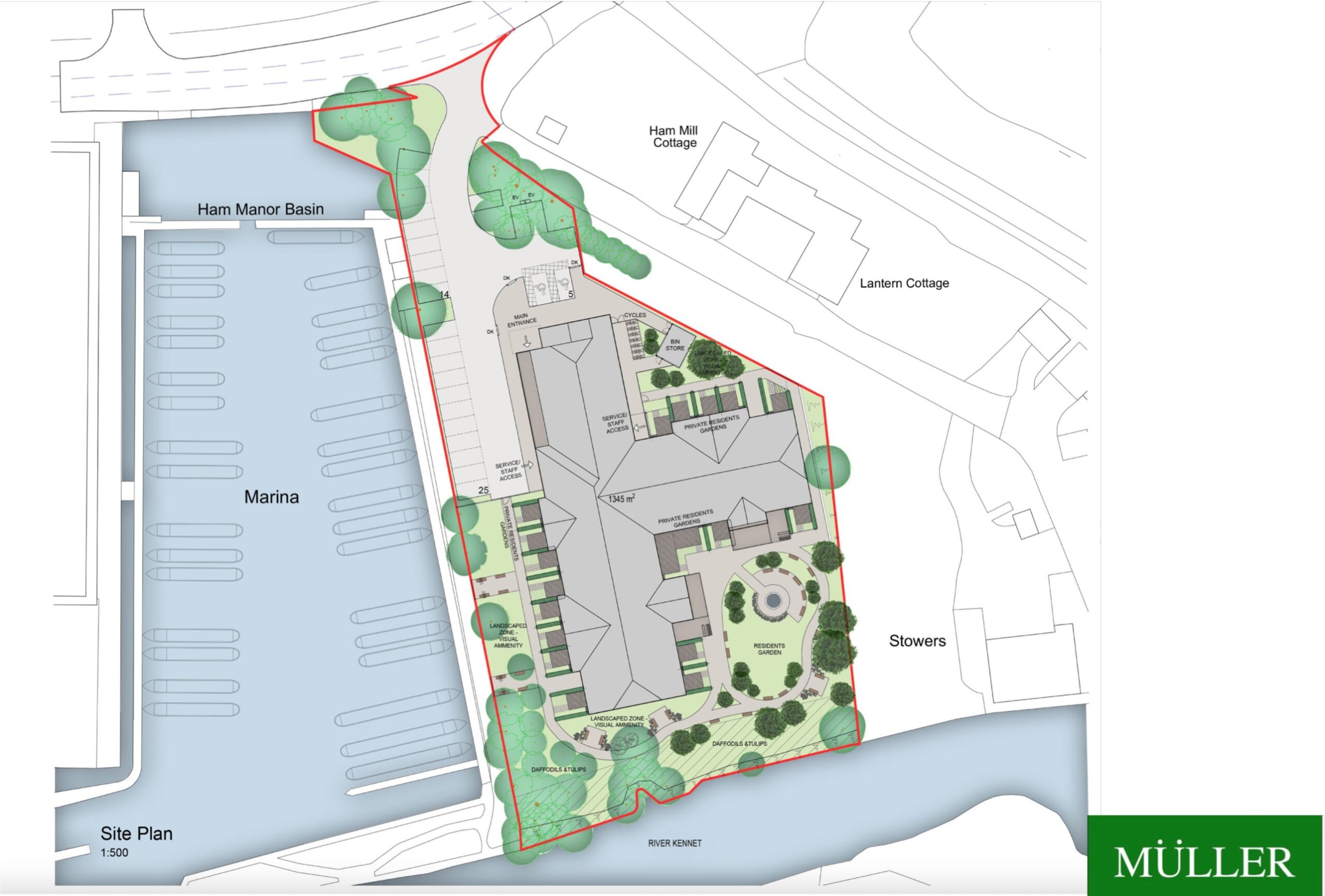
Full planning permission has been granted for a new, purpose-built 80-bed care home in a central part of Peterborough. The development will help address the
Gain valuable insights and get the latest property news, planning updates, and development opportunities direct to your inbox.

Full planning permission has been granted for a new, purpose-built 80-bed care home in a central part of Peterborough. The development will help address the

Colin Muller’s latest interview with The Telegraph reveals insight into the complexities of today’s planning process, the hidden costs, along with how to unlock value

The government’s newly announced Pro-Growth Package, part of its broader Planning and Infrastructure Bill, promises to “unshackle Britain” and get the country building again. With

The appointment of Rt Hon Steve Reed OBE MP as Secretary of State for Housing, Communities and Local Government marks a pivotal moment for our

Muller Property Group has submitted an outline planning application to Stafford Borough Council for Phase 2 of residential development for up to 71 new homes,

Muller Property Group has submitted an outline planning application for the delivery of up to 48 new homes on land at the southern edge of

At Muller Property Group, we’re passionate about creating developments that shape communities and deliver real value. As we continue to grow, we’re looking for a

Muller Property Group has submitted an outline planning application for the delivery of 65 new homes on land off Audlem Road in Woore, Shropshire.

Muller Property Group has submitted an outline planning application to Stafford Borough Council for a new residential development of 55 new homes on land to

Muller Property Group has announced the acquisition of a 5.97-acre site to the north of Drakes Broughton, Worcestershire. Situated on the east side of Stonebow
Gain valuable insights and get the latest property news, planning updates, and development opportunities direct to your inbox.