Developments

Residential, Healthcare, Commercial & More

If you are interested in finding out more about any of our developments then please get in touch.

Filter by Type:

Care Home in Kidderminster, Worcestershire - CGI - Muller Property Group

Kidderminster, Worcestershire

Planning approved for a new 80 bed care home with car parking and external landscaping, including private residents’ gardens.
Paulton Care Home Development, CGI, Muller Property Group

Paulton, Somerset

Proposed 84 bed care home on a 2 acre site in Paulton, Somerset with associated landscaping, parking, access and private gardens.
Care Home in Sandy, Bedfordshire - CGI - Muller Property Group

Sandy, Bedfordshire

Proposed 80 bed care home with associated car parking and landscaping in Sandy, Bedfordshire.
Care Home and Housing Development at Parkfield House, Middleton - CGI - Muller Property Group

Middleton, Greater Manchester

Planning approved for an 80-bed care home and 20 residential townhouses on a 3-acre brownfield site in Middleton, Greater Manchester.
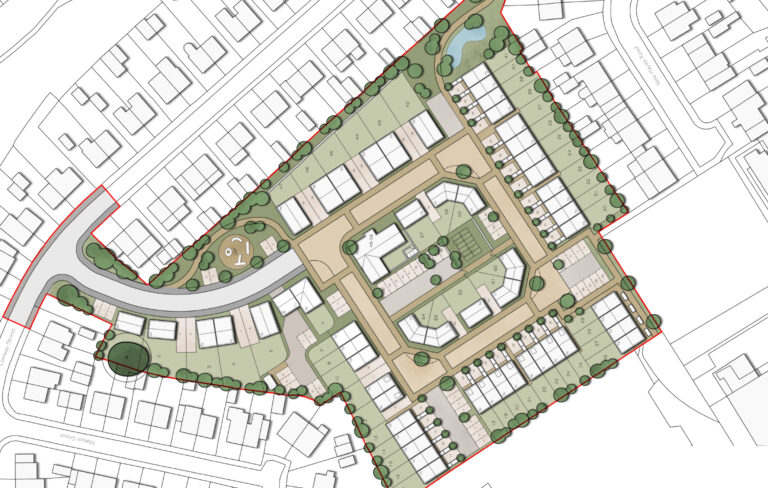
Housing Development in Barden Lane, Burnley - Site Plan - Muller Property Group

Barden Lane, Burnley

Planning approved for a new residential development of 73 dwellings on a 6.5 acre brownfield site off Barden Lane, Burnley.
Housing Development in Oakamoor Road, Cheadle - Site Plan - Muller Property Group

Cheadle, Staffordshire

Planning approved for up to 48 dwellings, including 33% affordable housing on a 2.05 hectares site to the north of Oakamoor Road, Cheadle.
Ariel shot sandyford

Sandyford, Staffordshire

Retail development completed, comprising a coffee drive-thru, convenience store, and retail units with parking and associated infrastructure.
Care Home in Huddersfield - CGI - Muller Property Group

Lindley, Huddersfield

Planning approved for a new 60 bed residential care home on a 0.7 acre brownfield site in Lindley, Huddersfield.
Whissendine, Rutland, Phase-1 Residential, CGI, Muller Property Group

Whissendine, Rutland

Residential development for up to 66 dwellings on the 8.6-acre site with 30% affordable housing in Whissendine, Rutland.
maylands park houses

Nantwich, Cheshire

Planning approved for Maylands Park Phase 1A, a residential development of 189 home on a 34-acre site in Nantwich.
Drury Site Plan

Drury, Flintshire

Proposed residential development for 66 dwellings on the 4.3 acre site with a range of 1, 2 and 3 bedroom homes in Drury, Flintshire.